+++ Das Haus wurde verkauft +++
** Besichtigen - Staunen - Kaufen - Koffer packen - Einziehen **
Unikat in Burbach - Holzhausen zu verkaufen.
Die Immobilie verspricht viel Licht und Wärme, es wurde auf eine großzügige Bauweise innen und außen Wert gelegt. Langlebige, biologische Materialien wurden verwendet, die auch optimal für Allergiker sind. Hier können Sie ein offenes Raumgefühl genießen. Wegen der Bauweise ist es einfach, räumliche Veränderungen zu verwirklichen.
Beheizt wird die Immobilie mit einer Gas Zentralheizung und Fußbodenheizung. Eine überlange Garage plus Carport plus zwei weitere Stellplätze sind vorhanden. Der nicht einsehbare Garten wird das Spielparadies Ihrer Kinder und lädt zum Verweilen in den Abenstunden und am Wochenende ein.
Das Inventar auf den Bildern im Expose ist nicht Bestandteil des Immobilienverkaufes.
Eckdaten zum Haus
- großzügig innen und außen
- Holzbauweise ( Skelett-Bauweise )
- biologisch
- 100 % Leimholz
- für Allergiker geeignet
- bodentiefe Fenster
- Kaminofen mit ca. 12 kw
- Bad mit Dusche und Wanne im OG
- Bad mit Dusche im UG
- Gäste WC
- Garage
- Carport
- Terrasse
- Zisterne
- Garten
- Grillecke
Aufteilung Untergeschoss
- 2 Zimmer
- Bad mit Dusche
- Hauswirtschaftsraum
- Werkstattraum
- Heizungsraum
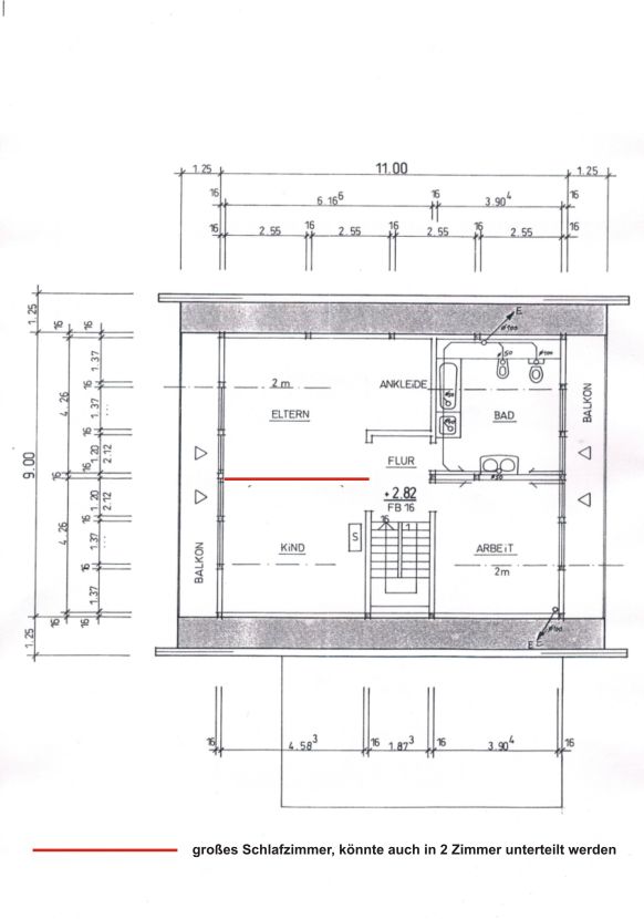
Aufteilung Erdgeschoss
- Wohn / Esszimmer
- Küche
- Abstellraum
- Gäste-WC
Aufteilung Obergeschoss
- 2 bis 3 Zimmer
- Badezimmer mit Dusche und Wanne
- Balkon
Angaben EnEV
- Energieverbrauchsausweis
- Energiekennwert: 104,8 kWh ( m²*a)
- Primärenergieverbrauch: 115,3 kWh (m²*a)
- Energieträger: Gas
- Energieeffizienzklasse: D
- Baujahr Immobilie: 1994
Bei Interesse an dieser Immobilie hinterlassen Sie bitte ihre kompletten Kontaktdaten.
Rechtliche Hinweise:
Schadensersatzansprüche sind mir gegenüber, mit Ausnahme grob fahrlässigen Handelns, ausgeschlossen. Alle in diesem Angebot enthaltenen Angaben, Abmessungen und Preisangaben beruhen auf Angaben des Verkäufers, Vermieters oder eines Dritten. Finden Sie im obigen Exposé bzw. in den dafür vorgesehenen Feldern keine Angaben zum Energieausweis oder den Energiekennwerten, so liegt zum Zeitpunkt der Veröffentlichung dieses Inserates kein gültiger Energieausweis für diese Immobilie vor. Der Makler übernimmt hierfür keine Haftung. Zwischenverkauf & Druckfehler vorbehalten.
Online-Streitbeilegung gemäß Art. 14 Abs. 1 ODR-VO: Die Europäische Kommission stellt eine Plattform zur Online-Streitbeilegung (OS) bereit, die Sie hier finden: ec.europa.eu/consumers/odr
um deine Lieblingshäuser und mehr zu speichern
Sie haben noch kein Konto? Bitte melden Sie sich an
Geben Sie Ihre E-Mail-Adresse ein und wir senden Ihnen einen Link zum Ändern Ihres Passworts.